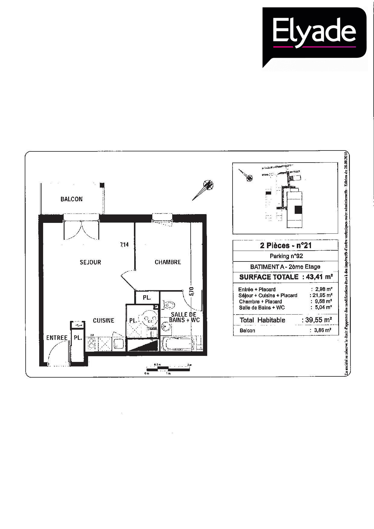
Appartement 2 pièces 39.55m²
À découvrir sans tarder !
Au 2ᵉ étage d’une résidence récente, ce bel appartement T2 offre un agencement fonctionnel et agréable.
Il se compose d’un séjour avec cuisine ouverte de 21,95 m², lumineux et convivial, d’une chambre de 9,58 m² avec placard intégré, ainsi que d’une salle de bain.
Vous apprécierez également son stationnement extérieur privatif et son chauffage au gaz, gage de confort et de maîtrise des consommations.
Un appartement idéal pour une résidence principale ou un investissement locatif, au sein d’un environnement récent et bien entretenu. En effet un loyer bail nu entre 570€ et 590€ Charges comprises offre une rentabilité entre 5.50% et 6%, alors qu'un bail meublé peut être proposé entre 630€ et 650€ soit une rentabilité au alentour des 6.50%
📞 À visiter rapidement !
Copropriété : 69 lots principaux
Aucune procédure en cours au sein de cette copropriété.
Charges courantes de copropriété : 625.14€ /an
Taxe foncière : 903€ / an
Montant estimé des dépenses annuelles d’énergie pour un usage standard : 331.05 €
Date de réalisation du DPE :28-02-2013
Date de référence des prix de l’énergie utilisé pour établir cette estimation : 01/01/2010
DPE en cours de renouvellement.
« Les informations sur les risques auxquels ce bien est exposé sont disponibles sur le site Géorisques : www.georisques.gouv.fr ».
Prix : 108 000 euros frais d’agence inclus à la charge de l’acquéreur : 8 000 euros TTC. Soit 100 000 euros hors honoraires.
Pour visiter et vous accompagner dans votre projet immobilier, contactez nous au : 05 82 08 00 50 ou selection.logementsanciens@elyade.com
Honoraires inclus de 8% TTC à la charge de l'acquéreur. Prix hors honoraires 100 000 €. Dans une copropriété de 141 lots. Aucune procédure n'est en cours. DPE en cours. Les informations sur les risques auxquels ce bien est exposé sont disponibles sur le site Géorisques : georisques.gouv.fr.
- Montant estimé des dépenses annuelles d'énergie pour un usage standard : 331,05 € par an. Date de référence des prix de l’énergie utilisés pour établir cette estimation : 2010.
