Local
ZONE EUROCENTRE - Entre Toulouse et Montauban - Prise directe A62.
À la recherche d'un espace idéal pour développer votre activité ? Ne cherchez plus !
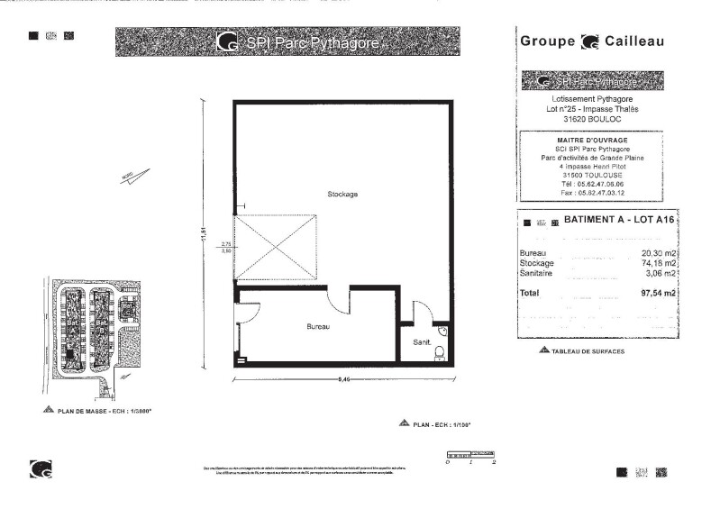
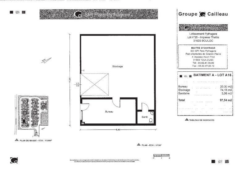
Le local d'une superficie de 97.54 m² dispose d'un bureau climatisé équipé de prise RG45 , d'un espace de stockageavec porte sectionnelle motorisé et d'un espace sanitaire.
Les + :
- Place de parking privée
- Attractivité et dynamisme de la zone
- Possibilité d'enseigne sur façade
- Espaces modulables
Stationnements privatifs devant la porte.
Dépôt de Garantie : 2 mois de loyer HC/HT.
*Voir conditions en agence.Mandat 6833.Photos non contractuelles.
VISITES ET RESERVATIONS -
06.10.19.51.22 (*Appel non surtaxé) ou par mail : localprofessionnel@elyade.com
Les informations sur les risques auxquels ce bien est exposé sont disponibles sur le site Géorisques : www.georisques.gouv.fr
+ 40.00€ de charges régularisées annuellement
+ 214.4€ de taxes
- Honoraires TTC à la charge du locataire : 2229.12 dont frais de dossier, bail, visite : 2229.12 dont Etat des lieux 0.00 €
- Dépôt de garantie : 2064.00 €
