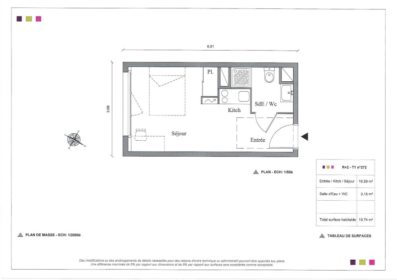
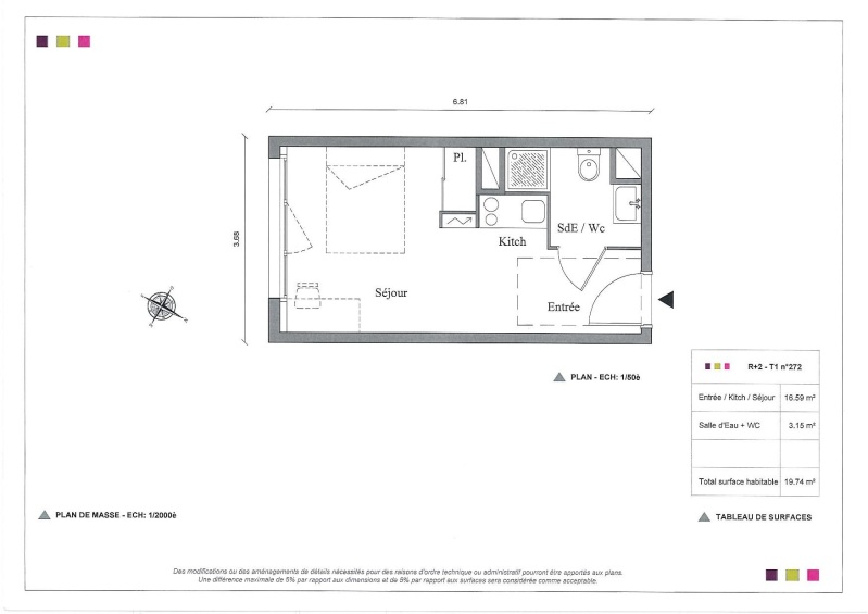
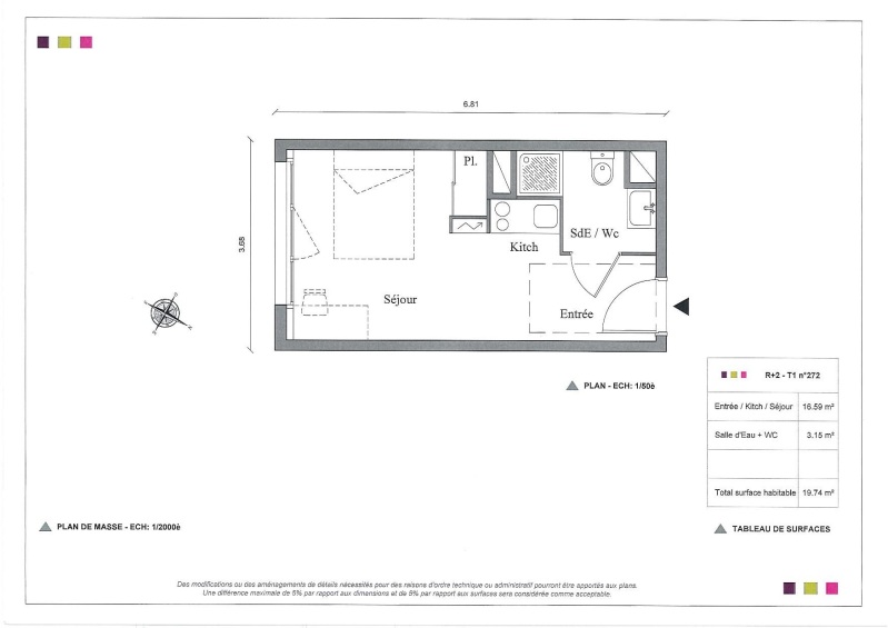
Appartement 1 pièce 19.74m²
Face à l'école ESMA et proche du campus universitaire de RANGUEIL, dans une résidence sécurisée, bien entretenue avec gardien.
Pour vous assurer le confort et la qualité de vie, vous trouverez à votre disposition une laverie, une salle commune , un boulodrome, et à deux pas de la résidence, l'arrêt de bus des lignes L6, L81 et L56, avec l'accès à la ligne 2 du métro à 4 mn.
T1 situé au 2ème étage, il se compose d'une entrée, séjour avec cuisine équipée (évier inox, plaque 2 feux, hotte, meubles hauts et bas, frigo top), salle d'eau aménagée avec WC, une place de parking aérien.
Visite virtuelle sur notre site ELYADE (Réf: 20968)
Louez un logement avec Elyade et bénéficiez gratuitement pendant 12 mois d'ALLOLILY, le service de conciergerie privée accessible à tous (sans obligation de souscription) !
Pour plus d'informations, contactez notre agence.
Mandat 9146 Possibilité Loca-Pass. Voir conditions en agence. Photos non contractuelles.
VISITES ET RESERVATIONS
09.72.391.390* (*Appel non surtaxé)
Les informations sur les risques auxquels ce bien est exposé sont disponibles sur le site Géorisques : www.georisques.gouv.fr
- Honoraires TTC à la charge du locataire : 258.99 dont frais de dossier, bail, visite : 199.18 dont Etat des lieux 59.81 €
- Dépôt de garantie : 308.00 €
- Montant estimé des dépenses annuelles d'énergie pour un usage standard : 142,41 € par an. Prix moyens des énergies indexés sur l'année 2019 (abonnements compris).
