EmailPrintShare
MONTAUBAN

Local

558 € hors taxe, hors charge
Réf : 20027
Disponible le 28/06/2026
Description :

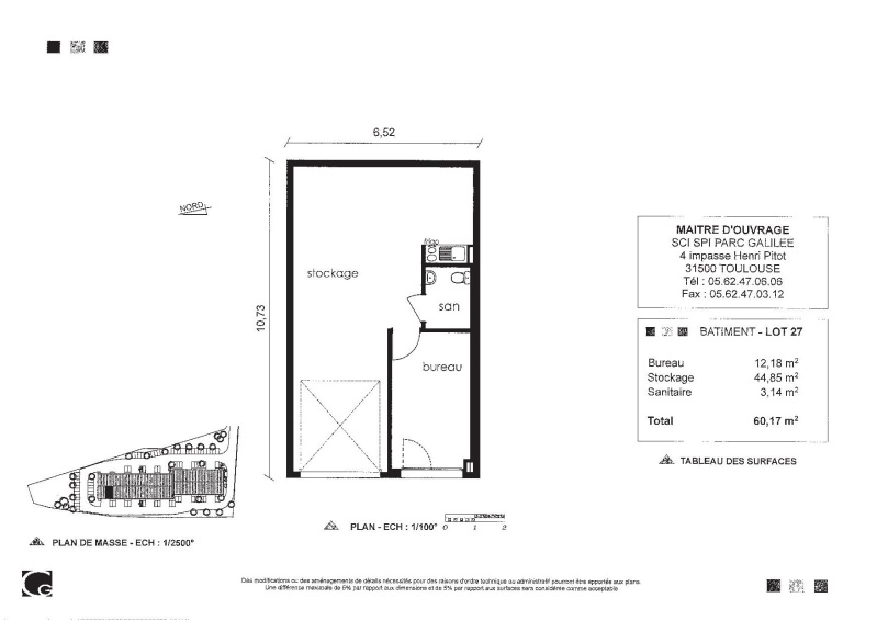
MONTAUBAN SUD ZONE D'ACTIVITES ALBASUD
A LOUER
Bureau et son espace de stockage dans un parc d'activités fermé, situé au coeur de la zone commerciale et d'activités Albasud et proche de l'autoroute A20.
BUREAU :- Climatisé- Sanitaire- Equipé de prise RG45
ENTREPOT / ZONE DE STOCKAGE :
- Porte sectionnelle :
- BATIMENT A : 2,7m L x 3,6m H
-BATIMENT B : 2,7m L x 3,1m H
Coin cuisine équipé (meuble haut/meuble bas, plaque de cuisson, hotte, frigo table top)
- Hauteur sous faîtage : 4,9m (minimum) pour le bâtiment A et de 3,55m (minimum) pour le bâtiment B
- Rapport poids / structure du sol : 2T/m²
Les + :
- Place de parking privée
- Attractivité et dynamisme de la zone Albasud
- Possibilité d'enseigne sur façade
- Espaces modulables
Vous aurez ainsi la possibilité de faire de ce local un atelier, un lieu d'archivage ou de stockage, etc. Vous pourrez de même installer une vitrine à la place de la porte sectionnelle.
Mandat 8368.Photos non contractuelles.
06.10.19.51.22 (*Appel non surtaxé) ou par mail : localprofessionnel@elyade.com
Les informations sur les risques auxquels ce bien est exposé sont disponibles sur le site Géorisques : www.georisques.gouv.fr

558€ Hors taxe, hors charge / mois
+ 90.00€ de charges régularisées annuellement
+ 111.6€ de taxes
  • Honoraires TTC à la charge du locataire : 1205.25 dont frais de dossier, bail, visite : 1205.25 dont Etat des lieux 0.00 €
  • Dépôt de garantie : 3348.00 €
Voir le barème de l'agence
  • DPE en cours de renouvellement.